阀门型号编制说明
| Q | 6 | S | 4 | 7 | F | -16 | P |
| 阀门类型 | 动作方式 | 操控 | 连接方式 | 阀门结构 | 密封材料 | 公称压力 | 阀体材质 |
| Q:球阀 | 6:气动 | S:手轮 | 4:法兰 | 7:固定式 | F:聚四氟乙烯 | 16:1.6MPa | C:碳钢 |
| 无:省略 | PPL:对位聚苯 | 25:2.5MPa | P:不锈钢304 | ||||
| H:硬密封 | 40:4.0MPa | R:不锈钢316 |
■ 固定式气动球阀 产品特点
1,固定式气动球阀双阻塞与排放功能:固定球阀采用弹簧预紧浮动阀座,无论阀门处于全开或全关状态时,上下游侧的阀座使流体阻断,阀体中腔滞留物通过排放阀排泄。
2,自动泄压功能:阀门体腔停留介质温度升高而引起异常升压时,不需通过安全阀,而仅靠阀座功能就可自动泄压,这对保证阀门在输送液体介质时的安全性非常重要。
3,防火安全结构:阀门都具备防火安全功能,其设计、制造均遵循API 607和API 6FA 规范要求。
4,密封紧急注脂救护:由于介质中的异物或火灾造成阀座密封意外失效,注脂阀提供了与注脂枪的快速连接,方便快捷地将密封脂注入到阀座密封部位,缓解泄漏。
5,可靠的阀杆密封和低操作力矩:除了设置标准密封套圈外,填料压盖上也设置了“O”型密封圈,双重密封保证了阀杆密封的可靠性;增设的石墨填料和密封脂注入使火灾后的阀杆泄漏降至最低。阀杆滑动轴承和止推轴承使阀门操作轻便。
6,固定式气动球阀阀杆可加长:根据安装或操作的需要,可对阀门阀杆进行加长。加长杆球阀,特别适用于城市煤气等需要埋地铺设管线的场合。加长阀杆尺寸按客户需要确定。
7,操作灵活:采用具有小摩擦系数和良好自润滑性的阀座和阀杆轴承,大大地减少了阀门的操作扭矩。因此即使在没有提供密封润滑脂的情形下,也能够长期灵活自如地对阀门进行操作。
8,驱动方式多,易实现自动化控制,驱动方式灵活,根据需要可选择手动涡轮、气动、电动等。
9、固定式气动球阀安装双作用气动执行器和二位五通电磁换向阀,可以控制阀门的开和关;安装单作用气动执行器和二位三通电磁换向阀,不但可以控制阀门的开和关,而且能在气源发生故障时,阀门会自动停在预设的开或关的安全位置。
■ 固定式气动球阀 主要零件材质
| 零件名称 | 材 料 |
| 气动执行器 | ZTA型:铝合金 / AW型:铸铁 |
| 阀 体 | WCB、CF8、CF8M |
| 球 体 | 2Cr13、CF8、CF8M |
| 密 封 圈 | PTFE、PPL、2C13+渗氮、304/316+STL合金 |
| 阀 杆 | 2Cr13、CF8、CF8M |
| 阀座弹簧 | 17-7PH |
| 阀座支撑圈 | 2Cr13、304、316 |
| 垫圈 | 金属+石墨 |
| 止推轴衬 | PTFE、石墨 |
| 填 料 | PTFE、石墨 |
■ 固定式气动球阀 控制附件功能

| 公称通径 | DN(mm) | 50~350 | |||||
| 公称压力 | PN(MPa) | 1.6 | 2.5 | 4.0 | 6.4 | ||
| 试验压力(MPa) | 强度试验 | 2.4 | 3.75 | 6.0 | 8.6 | ||
| 密封试验(水) | 1.76 | 2.75 | 4.4 | 7.04 | |||
| 密封试验(气) | 0.6 | ||||||
| 泄 漏 量 | A级(软密封)、V级(硬密封) | ||||||
| 设计标准 | GB/T12237-1989 | ||||||
| 法兰连接尺寸 | GB/T9113.1-2000、JB/T79-94、HG20592-1997 | ||||||
| 结构长度 | GB/T12221-2005,ISO 5752/EN558-1 | ||||||
| 压力温度额定值 | GB/T12224-2007、ASME B16.34-2003、ISO 7005-1 | ||||||
| 压力试验 | GB/T 13927、JB/T9092-1999 | ||||||
| 适用介质 | 水,污水,蒸汽,空气,各种油类,酸类,碱类,盐类等。 | ||||||
| 适用温度 | 聚四氟乙烯≤150℃,对位聚苯≤300℃,合金硬密封≤550℃ | ||||||
| 驱动方式 | 气 动 | ||||||
| 气动执行器 | ZTA双作用、ZTA单作用(弹簧复位)、AW型 | ||||||
| 控制形式 | 开 关 型 | ||||||
| 可选控制附件 | 电磁换向阀 | AC220V/DC24V | |||||
| 单作用 | 二位三通 | ||||||
| 双作用 | 二位五通 | 单电控 | |||||
| 双电控 | |||||||
| 限位开关 | 机械式 | ||||||
| 感应式 | |||||||
| 手操机构 | |||||||
| 气源处理三联件 | |||||||

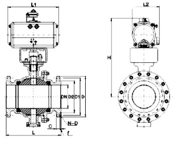
■ 固定式气动球阀 外形尺寸 单位:mm
| DN | H | L1 | L2 | 1.6MPa | 2.5MPa | 气动执行器 (双作用) | ||||||
| L | D | D1 | N-D | L | D | D1 | N-D | |||||
| 50 | 244 | 260 | 109 | 216 | 165 | 125 | 4-18 | 216 | 165 | 125 | 4-18 | ZTA92 |
| 65 | 278 | 286 | 120 | 241 | 185 | 145 | 4-18 | 241 | 185 | 145 | 8-18 | ZTA105 |
| 80 | 304 | 286 | 120 | 283 | 200 | 160 | 8-18 | 283 | 200 | 160 | 8-18 | ZTA105 |
| 100 | 353 | 340 | 142 | 305 | 220 | 180 | 8-18 | 305 | 235 | 190 | 8-23 | ZTA125 |
| 125 | 518 | 480 | 174 | 356 | 250 | 210 | 8-18 | 381 | 270 | 220 | 8-25 | ZTA160 |
| 150 | 592 | 538 | 206 | 394 | 285 | 240 | 8-23 | 403 | 300 | 250 | 8-25 | ZTA190 |
| 200 | 685 | 568 | 226 | 457 | 340 | 295 | 12-23 | 502 | 360 | 310 | 12-25 | ZTA210 |
| 250 | 816 | 660 | 260 | 533 | 405 | 355 | 12-25 | 568 | 425 | 370 | 12-30 | ZTA240 |
| 300 | 940 | 740 | 394 | 610 | 460 | 410 | 12-25 | 648 | 485 | 430 | 16-30 | ZTA270 |
| 350 | 1015 | 830 | 430 | 686 | 520 | 470 | 16-25 | 762 | 550 | 490 | 16-34 | ZTA300 |
以上尺寸为PTFE密封尺寸,硬密封以及PN40压力以上的配置参数尺寸,请与销售部联系!

